Appartamento di 130 mq in vendita a 370.000 €

In una delle zone più servite e richieste del quartiere San Carlo, a pochi passi dai principali servizi primari, proponiamo in vendita un elegante appartamento completamente ristrutturato a nuovo, frutto di un’attenta e meticolosa riqualificazione di un edificio anni ’60.
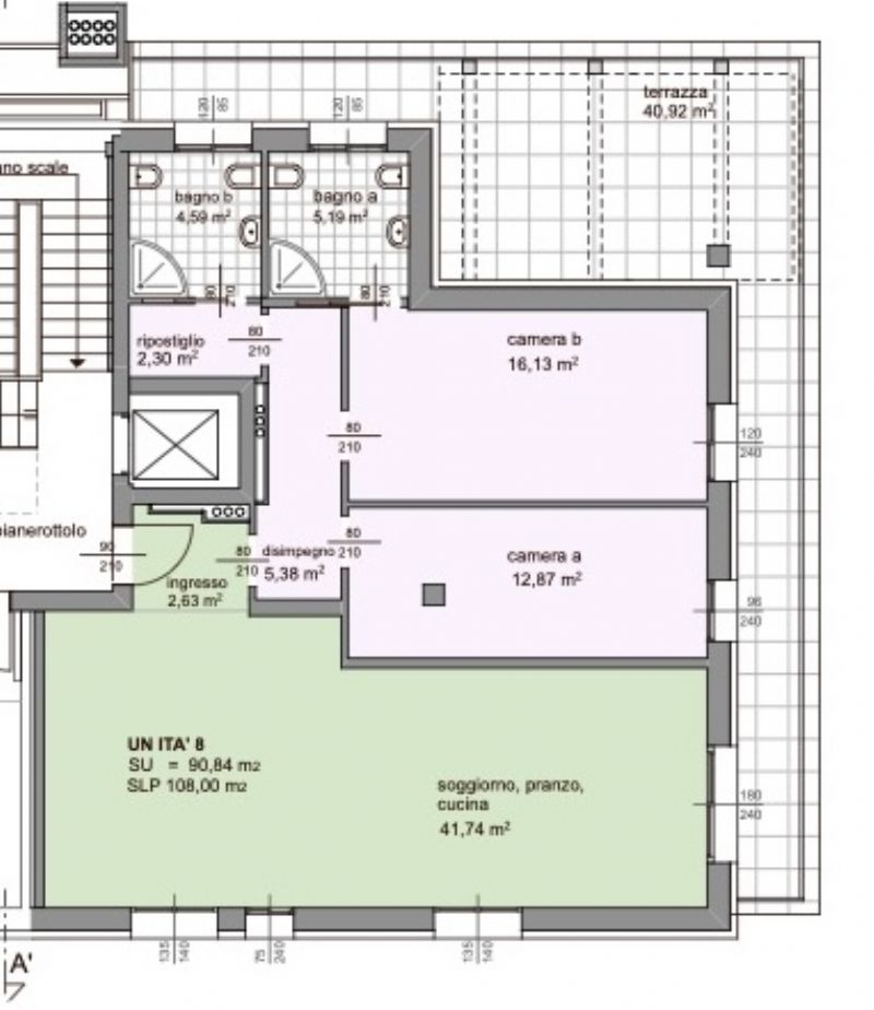
Piano quarto con ascensore, l’abitazione si distingue per spazi generosi e una distribuzione funzionale:
Composizione interna:
Ampia zona giorno luminosa con affacciano su scenografico terrazzo di 40 mq
Due spaziose camere da letto
Due bagni moderni e finestrati
Garage al piano terra
Finiture e dotazioni di pregio:
• Cappotto termico
• Infissi in triplo vetro basso emissivo
• Caldaia autonoma a condensazione
• Predisposizione per aria condizionata e sistema d’allarme
• Finiture interne curate con materiali di alta qualità
Classe energetica: A4 – massima efficienza e risparmio energetico garantito.
📞 Soluzione ideale per chi cerca un appartamento moderno, efficiente e pronto da abitare, in un contesto comodo e strategico.

 

 

Caratteristiche principali:
Piano Superiore al Primo 
Cucina Angolo cottura  
Soggiorno
Camere  2  
Servizi  2  
Ripostiglio
Soffitta
Mansarda
Taverna
Cantina
Lavanderia
Terrazzo 40 mq
Poggioli
Garage/Posto auto Garage/Box
Ascensore
Giardino Giardino comune
Riscaldamento Autonomo Metano 
Aria condizionata
Altre caratteristiche


Classe energetica
 


EPG kWh/m² anno
  Richiedi informazioni

Bottoni Luca - Viale delle Terme 16, 35031 Abano Terme
cell. 348 8141381 - info@immobiliarebottoni.it
p.IVA 03926150289

 

Informativa sulla Privacy e l'utilizzo dei cookies